
SANDGASSE, HOFHEIM
Private Bauherrschaft
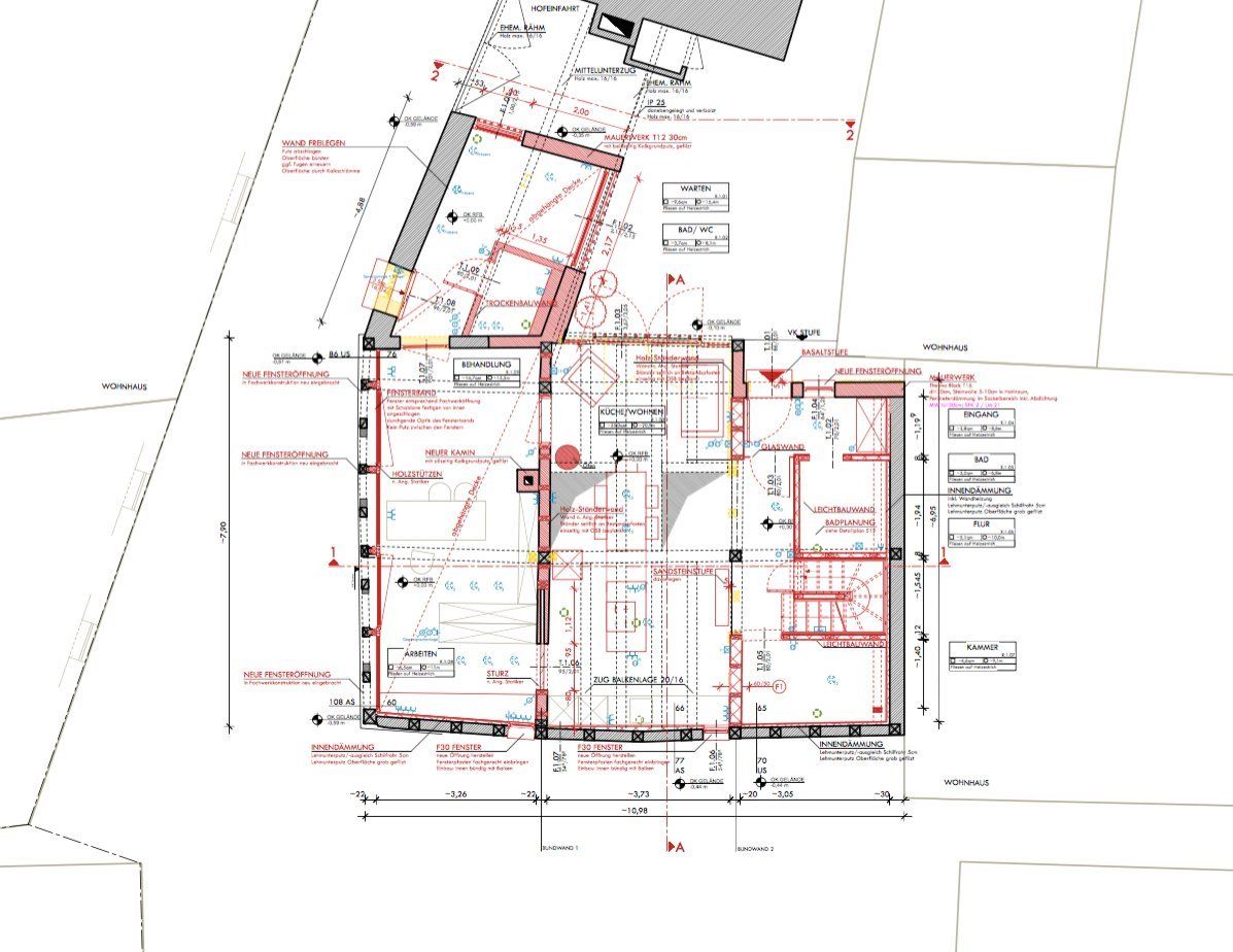
Die Altstadt von Hofheim ist zwar nur noch fragmentarisch erhalten, doch die Bürger der Stadt identifizieren sich stark mit dem Ort und schaffen ein großes Gemeinschaftsgefühl. Genau mitten in diese Identität wünschte sich die Bauherrin, die von ausserhalb die historische Hofreite an der Hauptstrasse Ecke Sandgasse übernommen hatte. Vorerst wurden Sanierungen im Vorderhaus umgesetzt, doch das Schmuckstück sollte die frisch unter Kulturdenkmalschutz gestellte Scheune aus dem Jahr 1712 werden. Bevor man die Scheune für Arbeiten und Wohnen umnutzen konnte musste die Immobilie jedoch umfassend saniert werden. Die städtebauliche Lage stellte baurechtlich höchste Ansprüche, weshalb wir Alternativen suchten um vor allem Licht in das Haus zu bekommen. Fündig wurden wir bei der Firma Stebler, die denkmalgerechte Fenster der Superlative fertigt, welche ohne Konstruktionsänderungen im historischen Bestand auskommen. Entsprechend konnten wir garantieren, dass der Dachstuhl zu 100% erhalten bleibt und wir über die Südseite des Hauses nun umfassend Licht in das Gebäude tragen konnten, welches über Panzerglasscheiben im Dachgeschossboden weiter nach unten in die Tenne, heute Wohnküche, geleitet wird. Erdgeschoss und Dachgeschoss wurden modern entwickelt, offene Flächen geschaffen die ein luftig loftiges Wohnen mit viel Kontakt und Sicht realisieren.
Leider ist uns das Projekt auf den letzten Metern aus den Fingern geraten. Bauen ist nicht nur eine kulturschaffender Prozess, es ist auch ein sehr individueller; und im Falle von denkmalgeschützten Bauten auch teilweise ein sehr teurer Akt der von zahlreichen Umwegen und Sackgassen geprägt werden kann. Das Projekt war leider schon im Moment der Auftragsübernahme eine solche Sackgasse. Ursprünglich hat uns das Landesamt für Denkmalpflege nach zahlreichen Problemen mit Planern beauftragt einen alternativen Entwurf für das Projekt zu entwickeln. Aus den Entwurf wurde ein Bauantrag, der mit Details wie einer Dachterrasse im Krüppelwalm und dem damit verbundenen statischen Erfordernissen in keinem Fall unseren Ansprüchen entsprechen konnte. Verwunderlicherweise entsprach die Planung jedoch den Anforderungen der Unteren Denkmalschutzbehörde; sie schien nicht beachtet zu haben, das der Einbau der Dachloggia den Austausch des geschützten Dachstuhls besiegelt hätte.
Nach der Bauantragsplanung bat uns die Bauherrin auch die Baustelle in der Ausführung zu übernehmen, welche wir auf Grundlage der eingereichten Pläne ablehnten. Nach Anfrage sowie positiver Rückmeldung bei der Unteren Denkmalschutzbehörde, ob die Dachloggia gegen ein großes Atelierfenster der Fa. Stebler zu tauschen ist, haben wir die Zusage für die Übernahme der Baustelle gemacht, einen neuen Bauantrag erarbeitet und die Baustelle nach vorangegangen 2 Jahren des Stillstands zum Laufen gebracht. Leider verließ uns nach rund neun Monaten das Glück: Die Untere Denkmalschutzbehörde erinnerte sich wohl nicht mehr an die pauschale Zusage und forderte eine wesentlich kleiner Ausführung des Atelierfensters. Rund die Hälfte der heutigen Höhe sollte denkmalrechtlich genehmigungsfähig sein. Die Bauherrin forderte jedoch die gesamte Höhe, da es sich ja um die Ersatzmaßnahme für Ihre genehmigungsfähige Dachloggia handelte; das Fenster war ohnehin schon beauftragt und konnte nicht umgebaut werden. Die Bauherrin formte einen Kreis von Unterstützern um sich herum und der Einbau des Fensters folgte schließlich ohne Genehmigung. Es folgte ein Baustopp, der die Baustelle vollständig zum Erliegen brachte, gefolgt von heiklen Diskussionen über Umplanung, Rückbau und Ersatzmaßnahmen. Tatsächlich haben wir ein zweites Projekt in dem das Fenster Platz gefunden hätte, wenn es denn nötig geworden wäre. Leider führte erst der Gang der Bauherrschaft zur Politik zur Beruhigung im Verfahren. Seit dem wird das Dachfenster geduldet! Der Baustopp wurde aufgehoben und schließlich konnte die Fertigstellung im Dezember 2016 nach 15 Monaten Bauzeit erfolgen. Wenn es auch noch Treppengeländer und Duschtrennwände zu montieren gab; die private Praxis wie auch der Wohnbereich konnten in die Nutzung übergehen.
An dieser Stelle verließ nun auch mich das Glück vollends: Nach rund zwei Jahren gemeinsamer und intensiver Arbeit versagte mir die Bauherrschaft das Vertrauen; meine Kalkulationen der Baukosten seien fehlerhaft. Schwer wiegten die Androhungen, die schlussendlich vor dem Schlichtungsausschuss der Architektenkammer Hessen in Wiesbaden an Substanz verloren. Dafür wurde uns eine ungünstige Treppenkonstruktion zu einer finanziellen Anstrengung, die jedoch den Gegebenheiten geschuldet war.
Das Projekt ist tatsächlich eines unserer schönsten und spannendsten Werke geworden, welches mit hoher Qualität in Bauausführung und räumlicher Spannung überzeugt. In keinem Fall angestaubt, noch puristisch kühl: Es ist gebaute Tradition modern genutzt. Eine Publikation der Innenräumlichkeiten bleibt uns leider bis heute verwehrt, was mich dazu motiviert das Projekt auch in andere Richtung als Pilotprojekt zu definieren: Es ist unser erstes Projekt mit deutlich unglücklichem Abschluss. Der Misserfolg trotz Fertigstellung ist das Ergebnis von der Radikalisierung aller am Bau relevanten privaten Ressourcen: Zeit, Zeit, Zeit ... und Zeit ist Geld! Wir haben uns darauf eingestellt, Projekte nicht immer als erste Hand entwickeln zu dürfen. Wir beginnen in 40% aller Fälle Projekte aus zweiter oder dritter Hand und machen blitzartige Projektstarts zu einem Zeitpunkt wo das Budget des Bauherrn schon empfindlich geschwächt ist, Ergebnisse vollständig fehlen, Baukredite laufen und Bereitstellungszinsen drohen, etc. Unser größtes Gut als spezialisiertes Architekturbüro in der Denkmalpflege ist der Erhalt von Bausubstanz, die sodann nicht abgebrochen und neu erstellt werden muss; sprich der Erhalt von Budget und von Zeit. Dafür bedarf es eine gewisse Flexibilität und eine Portion Vertrauen und vor allem das Verständnis dafür, dass eine zügige Planung nichts mit übereilten Auftragsvergaben und aus dem Boden gestampften Baustellen zu tun hat. Im hier vorgestellten Fall haben wir für die verzweifelte Bauherrin eine Baustelle aus dem Boden gestampft, es zugelassen, dass Aufträge ohne Angebot einfach auf Stunden vergeben wurden und unser Honorar und unseren Leistungsumfang nach unten geschraubt um die Projektkosten niedriger zu halten. Das hat der Bauherrschaft tatsächlich lange ein Lachen ins Gesicht gezaubert...
"Fehler sind Bestandteil des Lebens, man kann sie nicht immer vermeiden. Man kann nur hoffen, dass sie einen nicht zu teuer kommen und dass man denselben Fehler nicht zweimal macht."
Lee Iacocca

