
SACKGASSE, LANGENSELBOLD
Private Bauherrschaft
"Wir möchten eigentlich in einem Altbau wohnen; einen aus der Jahrhundertwende! Sprich gründerzeitliches Wohnen mit klassischer Raumaufteilung und Sprossenfenstern! ... Leider haben wir nur eine Basis aus den 70er Jahren!"
Mit einer geballten Portion Humor und doch nicht ohne bewusste Ernsthaftigkeit kamen die Bauherren auf uns zu und waren nicht davon abzubringen, dass wir diese unmögliche Aufgabe für Sie lösen. Unser Spieltrieb wurde geweckt und das "Warum nicht!?" hing uns wie der Schalk im Nacken. Zum Scheitern verurteilt machten wir uns auf den Weg die Gründerzeit aus dem Kopf der Bauherren zu verdrängen.
Unserer Vorstellung: Der Bau müsste weniger Dachüberstand bekommen, im Obergeschoss vertikal gestaltete, hohe Stulpfenster erhalten, die auf einem hohen Sockel ruhen, der durch quadratische Fenster mit mittiger Sprossenteilung die Höhe des wuchtigen Baus bricht. Der Balkon im Obergeschoss musste weichen, um der Terrasse im Erdgeschoss mehr Luft zu verschaffen, durch eine gemauerte Brüstung erfährt der Freibereich mehr Erdung und Intimität. Das Element der Mauern haben wir auch im Freibereich wiederholt und einen öffentlich zugänglichen Hof gestaltet sowie den privaten und intimen Garten klar abgetrennt ..... Man kann nicht alles haben, denn Geld fällt bekanntlich noch nicht von den Bäumen.
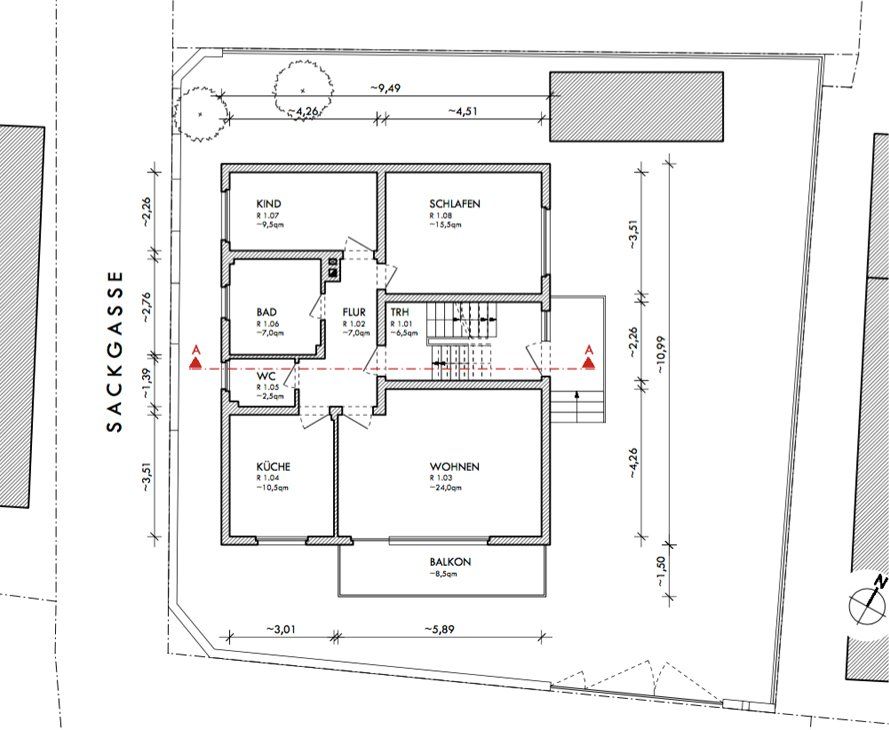
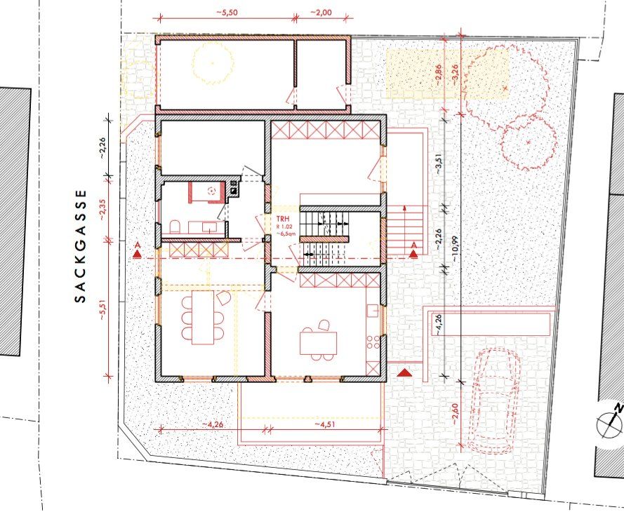
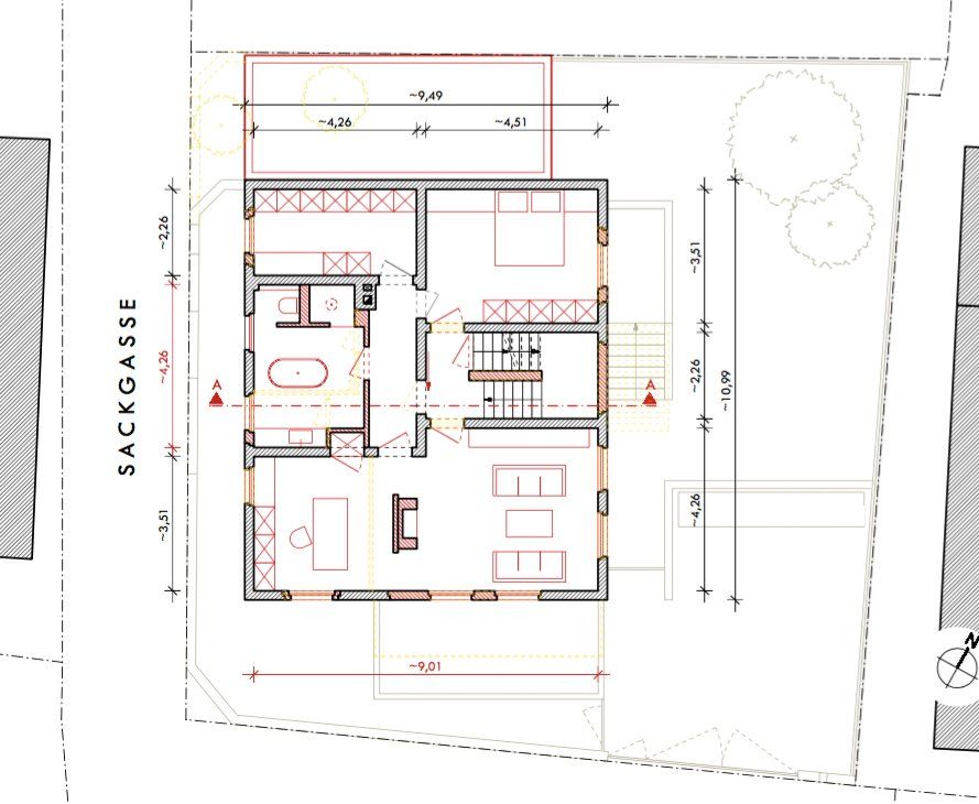
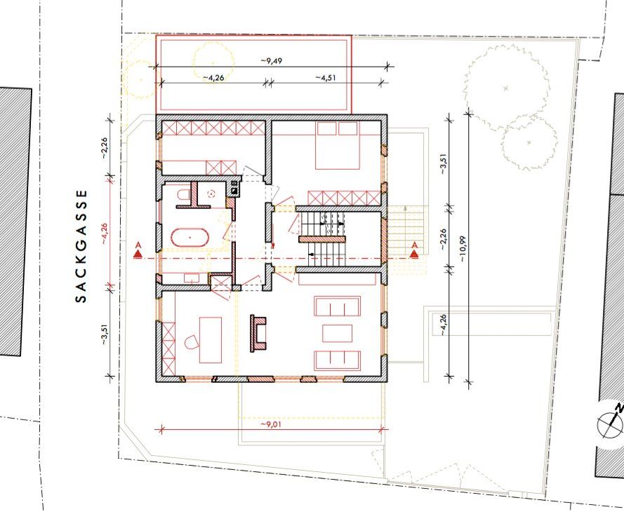
Dem Bauherren war es dennoch sehr ernst mit seinem Wunsch und so blieb es nicht bei dem ersten Auftrag für einen Entwurf : Das einstige Zweifamilienhaus wurde zurück- und vollständig umgebaut. Das Wohnzimmer wurde Küche und die Küche zusammen mit dem Klo schaffte ein stattliches Esszimmer. Das Treppenhaus wurde in den Wohnraum integriert und im Obergeschoss Wohnen, Arbeiten und Schlafen organisiert. Es wurden Proportionen studiert, intensiv hin und her skaliert und schließlich die ganze Arbeit tatsächlich auf die Fassade angewandt damit der Bau klassischer wird und seine 70er-Jahre-Gestaltung verliert.
Darf man so etwas überhaupt!?? ... In der Architekturtheorie ist der von uns hier begangene Weg sicher kritisch zu bewerten, wenn auch eine Analyse der zur Verfügung gestellten Architektur sicher nur schlecht ausfallen kann. Wenig fügt sich der Bau in seinen Ort, in die Strasse ein. Die Grundrisse verweigern jedwedes individuelle Wohnbedürfnis ausserhalb des Stils der Erbauungszeit. Ganz unbequem und etwas aufgeblasen, dazu in erster Linie horizontal strukturiert, stellt sich der Ursprungsbau hier gegenüber von Fachwerkhofreiten und neben niedrige Siedlungshäuser aus der Zeit der Industrialisierung. Wenig Attraktives hängt an dem funktionierenden Bau, was unsere Aufgabe nicht einfacher machte. Tatsächlich haben wir uns die Metamorphose des 70er-Jahre-Klotzes nicht leicht gemacht und können heute, so glauben wir, auf ein ganz ehrenwertes Haus schauen, was den Schritt zu auf seine Umgebung macht und durch gebrochene Fassaden und vertikale Strukturen wieder Zitate aus der Nachbarschaft aufnimmt, sich somit integriert und nicht mehr nur dick und groß in der Strasse wirkt. Hätten die Bauherren uns bei der Fassadengestaltung nur nicht verlassen.... Tatsächlich mussten wir die Sockelgestaltung mittels Bildbearbeitung um den hohen Sockel ergänzen. Doch der Rest ist ganz wahr und wir sagen gelungen und doch nicht gescheitert. Denn es gefällt ohne aufzufallen. Viel besser als der Altbau der noch immer im Haus steckt und sich gehörig angepasst hat. Es ist eine krasse Aufgabe gewesen!




