
KLEINE GASSE, NIDDERAU-EICHEN
Private Bauherrschaft
Der alte Ortskern von Eichen ist maßgeblich geprägt von landwirtschaftlichen Hofreiten. Als klassische Hakenhöfe zeigen sie sich als offene Struktur zum Strassenraum, dem meist eine zurückspringende Nebengebäudestruktur folgt und schließlich die Scheune, die den Hof in voller Grundstücksbreite abschließt und die Flächen zur Strasse in Hof definiert, während hinter der Scheune nur noch Garten- früher eher Ackerland zu finden ist. Betrachtet man also solche Ortschaften von außen, so zeigen sich der Kranz mächtiger Scheune meist stadtmauerartig als abschließendes und Ortsbild prägendes Element, welches schließlich genau die nun zu vermutende Schutzfunktion vor äußeren Einflüssen und wilden Tiefen mit sich bringen sollte.
Im Fall unserer Bauherrschaft war diese schützende Scheune schon vor einiger Zeit verschwunden. Das denkmalgeschützte Fachwerkhaus, giebelständig zum Strassenraum steht aus technischer Sicht in einem ordentlichen Zustand; optisch hingegen könnte dieses noch einiges an Liebe gebrauchen. Dahinter zeigte sich noch die Nebengebäudestruktur, sicherlich mit Dachterrasse völlig überfrort. Abschließend steht einen selbst hochgezogenen Scheunen-Ersatzbau mit fast flachem Dach, zwei unverputzten Geschossen und eingebauten Bauschäden.
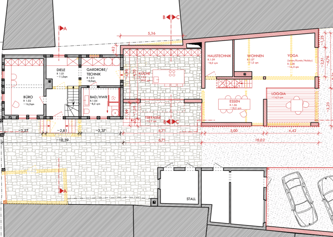
Die Bauherrschaft will in einer Zeit den gesamten Hof wieder herrichten, um dort zu wohnen wie auch zu arbeiten. Die fünfköpfige Familie benötigt dazu neben umfangreichen Wohnflächen noch ein Büro für den jungen Bauingenieur sowie eine größere offene Fläche, die für Jogastunden gedacht ist. Sicher ist das Bauvorhaben sehr ambitioniert und finanziell aufgrund der Größe sehr kostspielig. Doch die Kinder sind noch klein und die Selbstständigkeiten sind noch in der Vorbereitung; haben die Chance langsam zu wachsen; und mit Ihnen das Projekt.
Damit die Familie dennoch kurzfristig in neuen Wohnraum ziehen kann war geplant lediglich die Scheune samt dazugehörendem Nebengebäude ohne Rücksicht auf das Fachwerkhaus zu erstellen. Die Scheune sollte in Ihrer Größe nicht überdimensioniert werden; die Bauherrschaft ließ sich hier einschränken, damit die Quadratmeter für einen junge Familie vorerst reichen, wohl aber auf die Dauer nicht ausreichen. Jedoch könnte nur so die finanzielle Belastung im Rahmen gehalten werden. Entsprechend wird in den nächsten Jahren die Sanierung des Fachwerkhauses peu á peu von den handwerklich geschickten Bauherren vorangetrieben. Die Sanierung eines Fachwerkhauses lässt sich dabei gut in Eigenleistung voranbringen, macht Spaß und produziert keinen tatsächlichen Baustellenschmutz, sondern ähnelt eher dem Spielen im Garten mit Holz, Schilfrohr und Lehm. Es ist ein eher natürlicher Vorgang!
Eine den Ortsrand wieder abschließende Scheune konnte das Budget der Bauherrschaft nicht leisten. Auch die Quadratmeter dafür wären völlig übertrieben. Wohl aber konnten wir an die historische Situation anknüpfen und einen Ersatzbau zeichnen, der seine Wurzeln klar zeigt, das Ortsbild wieder homogenisiert und der Familie ein Bezug zum Gartenland herstellt und damit zu Sonne, Licht und Luft und sagenhafter Ruhe mit noch sagenhafterem Blick auf Pferdestall sowie die Nidder-Auen. Und damit ein Blick auf frühmorgendlichen Nebelschwaden, Rehe und Störchen; auf die den alltäglichen aber menschlichen Wahnsinn verachtende Natur.


