
HANAUER LANDSTRASSE, HANAU-GROSSAUHEIM
Private Bauherrschaft
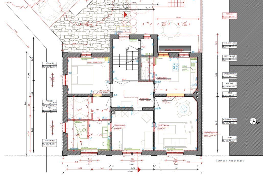
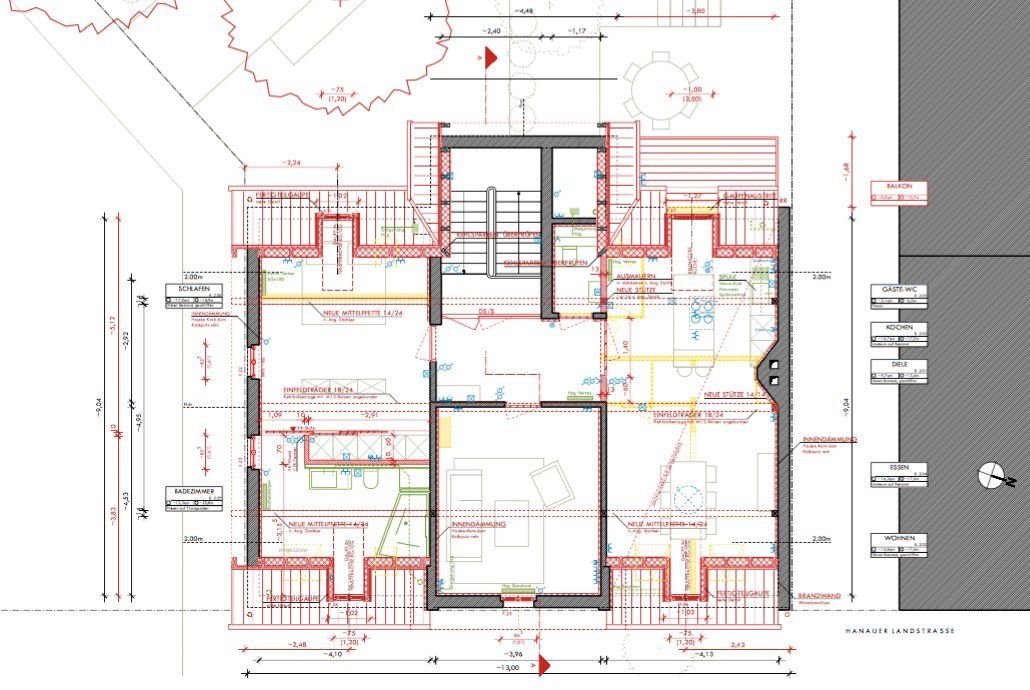
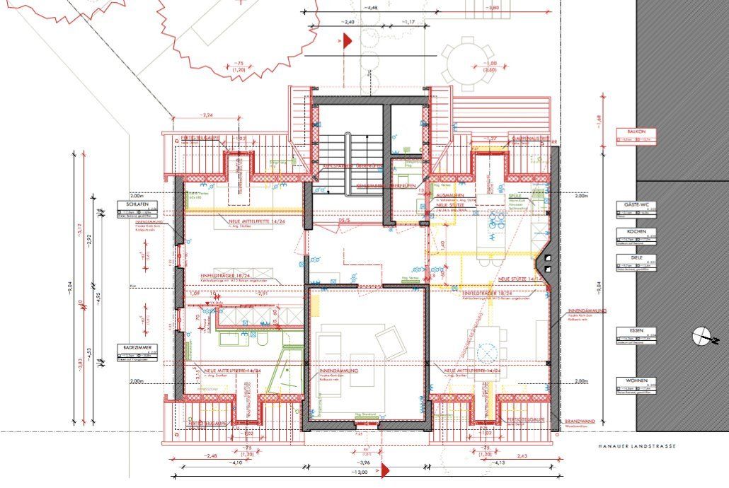
Das Haus an der Hanauer Landstrasse wurde 1904 als dreigeschossiges Wohnhaus erbaut. Das in die Jahre gekommene historistische Haus verfügte über keine regulären Badeinbauten und war insgesamt in einem eher verwohnten Zustand. Die Bauherrschaft hat sich dem Gebäude angenommen und drei hochwertige, entsprechend moderner Standards gedämmte Wohnungen eingerichtet. Alle Aussenwände wurden mit Hilfe einer Korkdämmung aufgewertet. Das Dach wurde saniert, vier neue Gaupen aufgeschlagen und entsprechende Dämmstärken in Sparrenebene sowie auf der letzte Geschossdecke eingebracht. Der Fensteraustausch brachte die historische Ordnung der Fassade wieder, auch wenn wir uns nun wohl schlussendlich gegen weiße Fenster in historistischen Gebäuden aussprechen würden! Neue Heizungs- und Elektrotechnik haben das Gebäude final auf den Effizienzhaus-Denkmal-Standard gehoben. Leider bzw. Gott sei Dank sieht man von außen nur wenig von den Anstrengungen, welche die Bauherrschaft hier investiert haben. Innen hingegen sind drei moderne Wohnungen mit rund 100qm Wohnfläche, hohen Decken und einem großzügigen Balkon in Richtung der untergehenden Sonne entstanden. Viel Platz präsentiert sich den Mietern in den modernen Küchen mit Insellösung mit Anschluss an den offenen Essbereichen. An die Schlafzimmer reiht sich eine herrschaftliche Ankleide sowie das großzügige Dusch-Wannenbad. Das Wohnzimmer öffnet sich zur herrschaftlichen Diele mit viel Licht, Raum und Platz. Und dennoch: Trotz der ganzen Neuerungen wurde vieles im Bestand erhalten und wieder herausgeputzt: Die alten Wohnungseingangstüren wurden aufwendig saniert, alle Türen im Bestand erhalten, geschliffen und gestrichen… und die Böden. Sie wurden allesamt überarbeitet, geschliffen und mit Öl eingelassen. Ein gelungenes Konzept, weder Alt noch Neu, und im Einvernehmen mit dem Denkmalschutz.


