
WILHELMSTRASSE, METZINGEN
Diplomarbeit 2010
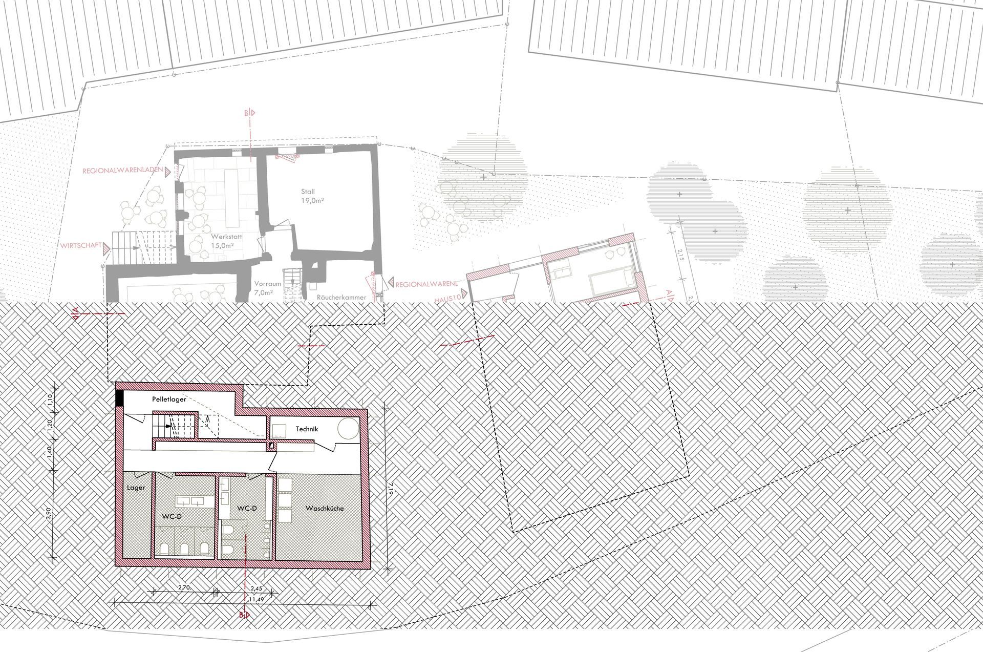
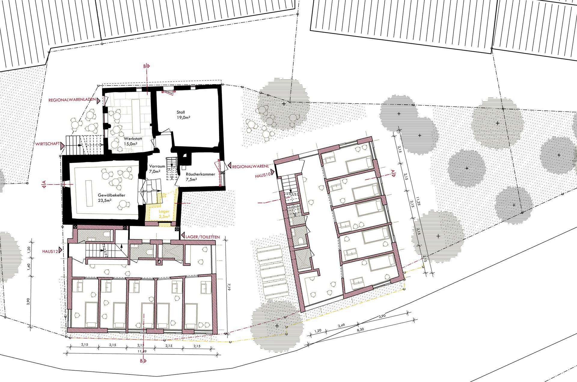
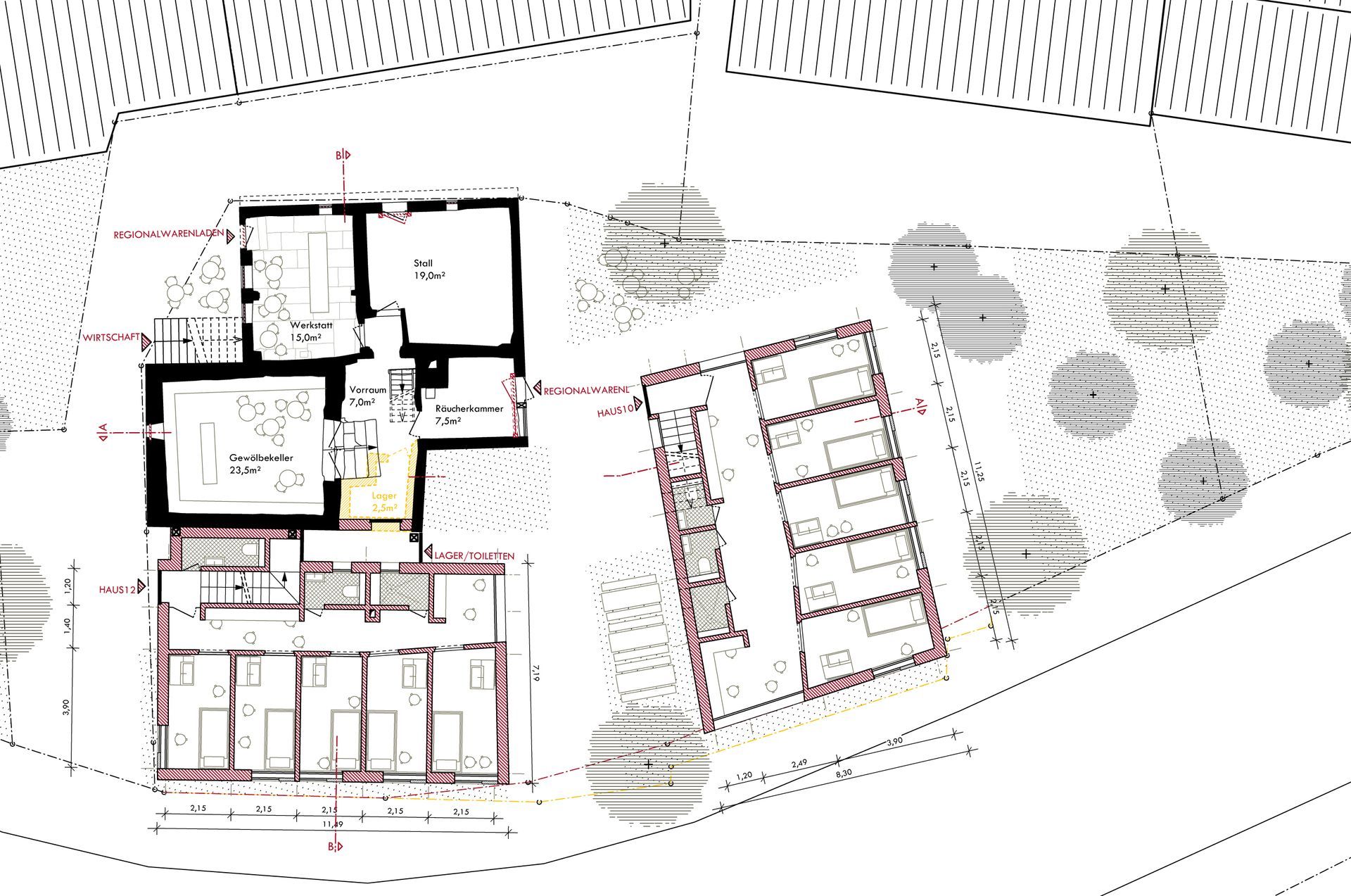
Meine Diplomarbeit sollte Realitätsbezug haben und war quasie als "Erstlingswerkt" von mir erdacht worden, mit dem ich mich gerne auf dem Markt platzieren und für weitere Bauaufgaben bewerben wollte. Entsprechend bat ich in der Vorbereitungsphase unterschiedliche Denkmalschutzbehörde um Unterstützung nach einem hoffnungslosen und aussichtslosen Fall. Fündig wurde die Untere Denkmalschutzbehörde in Tübingen, die mir das älteste Fachwerkhaus Metzingens präsentierte, welches eigentliche von seiten der Stadtplanung zu Gunsten eines innerstädtischen Parkplatzes wie die zuvor schon abgebrochenen Nachbarbauten weggeräumt werden sollte. Durch die Kulturhistorische Bedeutung des Hauses allemannischem Fachwerk und originaler Bohlenstube wurde den Ambitionen der Stadt ein jähes Ende gesetzt und die Liegenschaft wieder veräußert.
Der Käufer der Liegenschaft, ein Projektentwickler mit einem Faible für Altbauten, plante bei Übernahme den Firmensitz nach Metzingen zu verlegen, nahm jedoch im Zuge der Planungen und auch im Zuge der Entwicklungen um Metzingen wiederum Abstand und veräußerte die Liegenschaft an einen Metzinger Unternehmer.
Dieser plante, wie in Metzingen üblich, die Liegenschaft als Outlet-Store für einen Modehersteller, doch scheiterte mit seinen Planungsabsichten an den der Baubehörde, dem Stadtplanungsamt sowie der Unteren Denkmalschutzbehörde, für die ich die Entwicklung der Liegenschaft analysierte, jedoch mit einem einer Diplomarbeit angemesseneren Nutzungskonzept entwickelte.
Schlussendlich konnte die Diplomarbeit dabei helfen, die Liegenschaft im Sinne des Metzinger Unternehmers zu entwickeln, der Dank meiner Analyse sogar einen zweiten Bauabschnitt realisieren darf und kann. Ich selbst habe das Haus natürlich und leider nicht realisieren dürfen, wohl aber stellt die Beschäftigung mit diesem Metzinger Urgestein den Anfang meiner Motivation dar, mich für historische Gebäude einzusetzen, sie zu entwickeln und mit neuem Leben zu füllen.

























