
ZUR CHARLOTTENBURG, FRANKFURT-NIEDERERLENBACH
Private Bauherrschaft
Das Projekt lag eigentlich gar nicht so recht im Fokus; wir bzw. vor allem die Bauherrschaft dachte an ein paar Beratungsleistungen, Hilfe zur Selbsthilfe und maximale Reduzierung der Planungsausgaben nach erfolgreicher denkmalschutzrechtlicher Genehmigung. Das Objekt unspektakulär, irgendwie demoliert: Das Dach mit einem untypischen Kniestock für mehr Wohnraum aufgebockt, die ehemalige Toreinfahrt in den 60er Jahren mit einer dunklen Küche zugebaut und schließlich vor 30 Jahren auch die Nebengebäudestrukturen für einen Neubau abgebrochen. Die Bauherrschaft hatte zahlreiche Komplikationen, was den Kontakt zur Denkmalbehörde nicht gerade einfacher gestaltete. Für die jüngste Generation sollte es an den Umbau der historischen Stube der Grosseltern gehen, die samt dem darüber liegenden Wohngeschoss tatsächlich noch viel Ursprünglichkeit widerspiegelte. So viel Ursprünglichkeit, dass der Bauherrschaft die Phantasie wegblieb, wie denn nun hier einzuziehen sein soll. Wohneigentum in Frankfurt ist teuer.... das Experiment wurde gewagt!
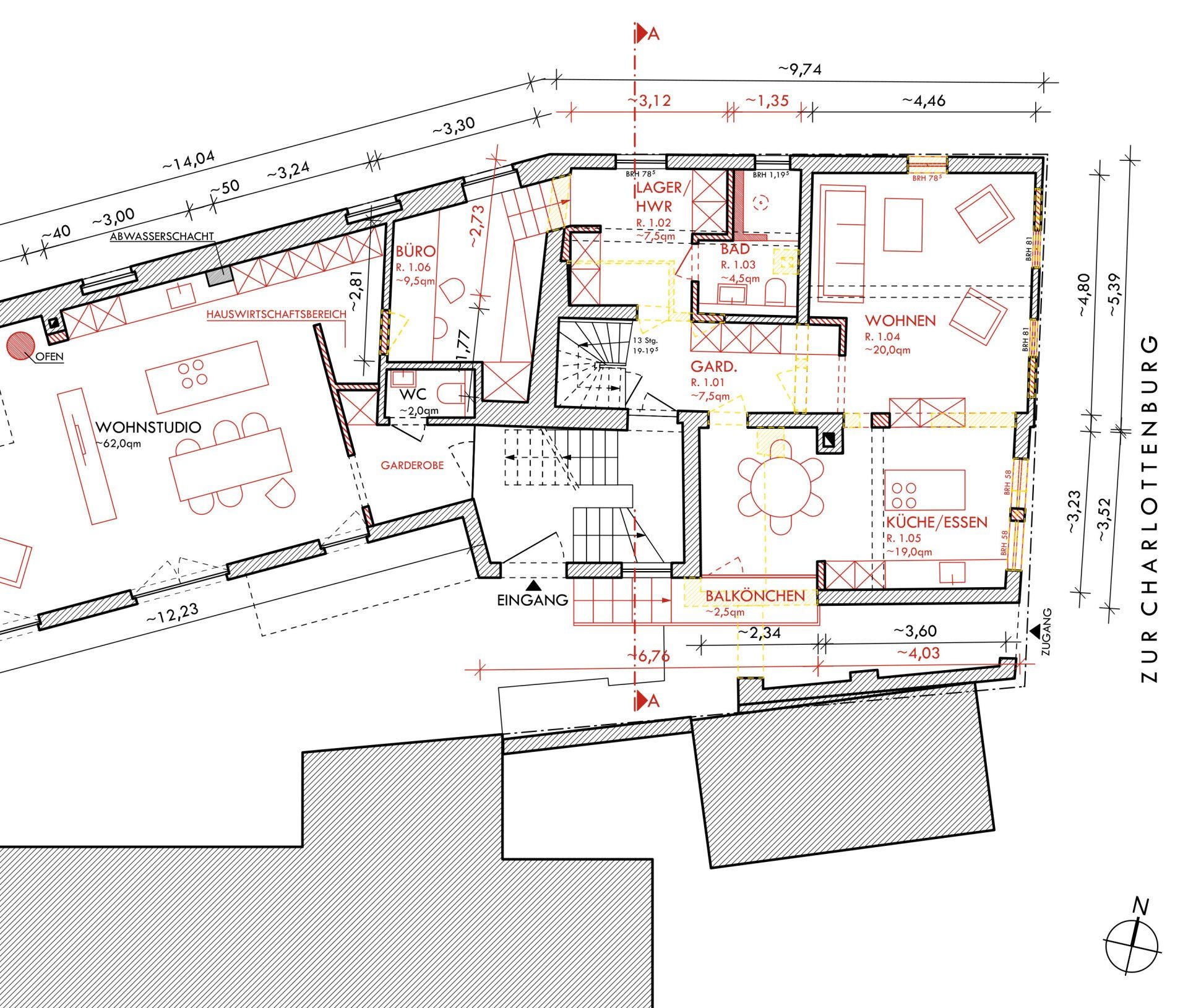
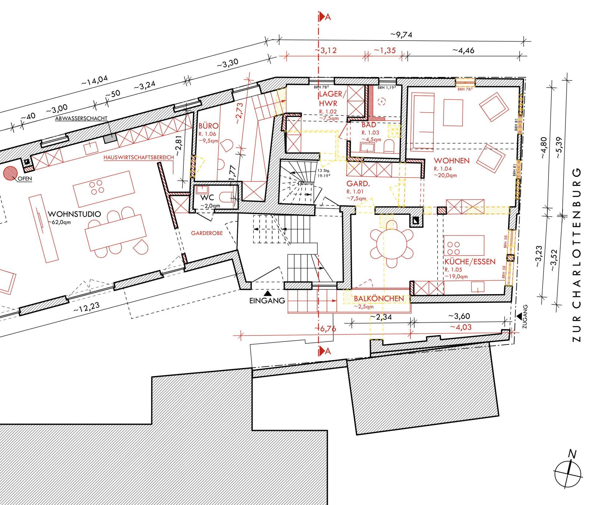
Auf den ersten Blick konnte auch wir wenig zur Grundrissgestaltung sagen; doch gerade deshalb hat diese Maßnahme Beispielcharakter für unsere Arbeit, die wir gerne mit "Nutzungen in den Bestand stricken" umschreiben. Mit Raumbuch und Bildkatalog der zukünftigen Bewohner gewappnet, machten wir uns an die Arbeit modernes Wohnen in den Bestand zu arbeiten, Freiraum zu gestalten und mithilfe von Licht qualitativ hochwertigere Flächen zu generieren. Erste Aufgabe dabei war die Sicherung und Reparatur der Statik, gefolgt von der Suche nach neuen Belichtungsmöglichkeiten. Besonders die Schaffung des sogenannten "Balkönchens" darf trotz Eigenlob hier besonders genannt werden, denn es gab keine Chance für eine privaten Freifläche. Wir fanden jedoch die Option auf eine Balkontür mit vorgelagerten 1,5 Quadratmetern angeschlossen an eine Treppe in den gemeinsamen Garten. Selbst den Wunsch nach einem Homeoffice konnten wir nachkommen, obwohl dafür kein Raum zur Verfügung stand. Generieren konnten wir diesen aufgrund einer Küchen-Neuplanung für die Eltern im Neubau, die den alten Küchenraum zugunsten einer modernen offenen Küche im überdimensionierten Wohnraum aufgaben. Mit Kreativität und Selbstlosigkeit der Eltern konnte also das eigentlich Unmögliche gelingen; das Raumprogramm wurde erfüllt, obwohl die Quadratmeter pragmatisch gesehen nicht ausgereicht hatten.
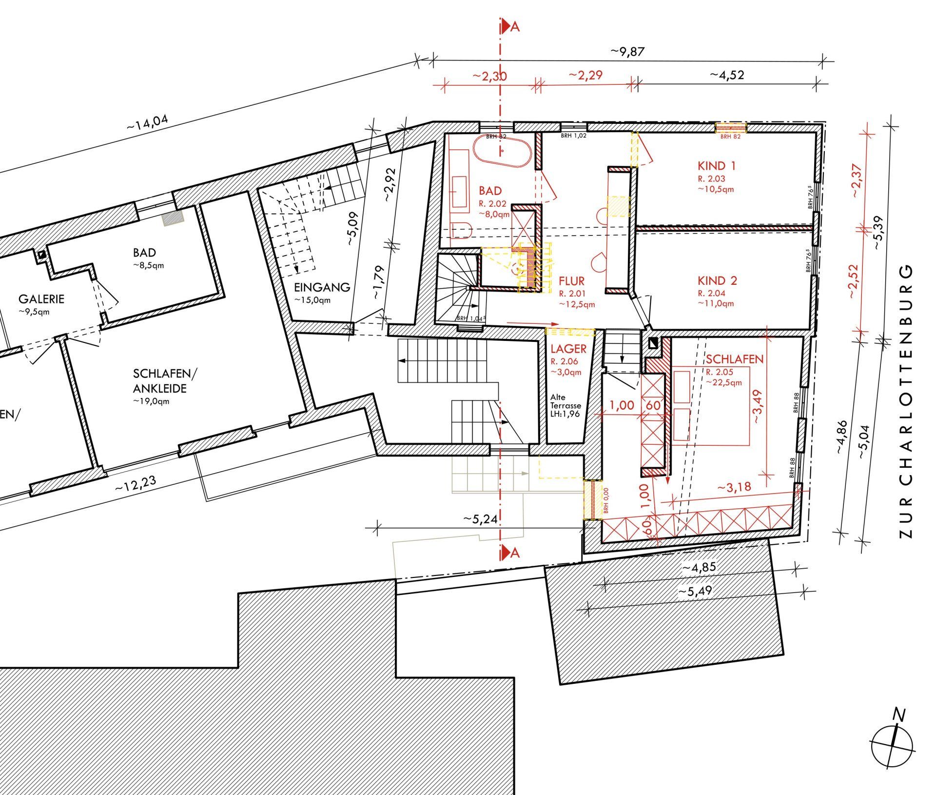
Innenräumlich haben wir tatsächlich gar nicht so viel gemacht: Wohnstube blieb Wohnstube; Küche blieb Küche, doch katapultieren rund vier Quadratmeter mehr Fensterfläche den Raum in ungeahnte Helligkeiten. Die kleinen Kammern wurden zurückgebaut und um deren statisch relevante Glieder Garderoben, Ankleiden und Bäder wie Hauswirtschaftsbereiche gestrickt. Das großzügige Zimmer im Obergeschoss wurde zu Gunsten zweier sympathische Kinderzimmer mittig geteilt. Das Schlafzimmer der Eltern oberhalb der ehemaligen Tordurchfahrt im Bestand erhalten und durch eine Schrankwand und wiederholt mehr Licht sehr harmonisiert.
Der Bestand wurde energetisch durch Kork- und Holzweichfaserdämmung in Kombination mit Lehmputz von innen energetisch ertüchtigt. Die Haustechnik wurde vollkommen erneuert, Fenster ausgetauscht und teilweise restauriert, Böden repariert und erneuert; die Treppen im Bestand wurden aufgearbeitet. Der geschliffene naturfarbene Heizestrich im Erdgeschoss kontrastiert maximal den historischen Bestand und bringt gerade dadurch die Wurzeln des Gebäudes so deutlich zu Geltung, dass selbst der Denkmalschutz bei der Abnahme seine klaren Glückwünsche für den gelungenen Spagat zwischen Tradition und Moderne formuliert hat. Die Bauherren selbst waren zum Abschluss fast erschrocken, denn innerhalb des Prozesses hatten Sie nicht gesehen, wie sehr sich der Wohnwert der Immobile verändern würde. Für möglich gehalten hatte das Ergebnis vor rund drei Jahren niemand!





